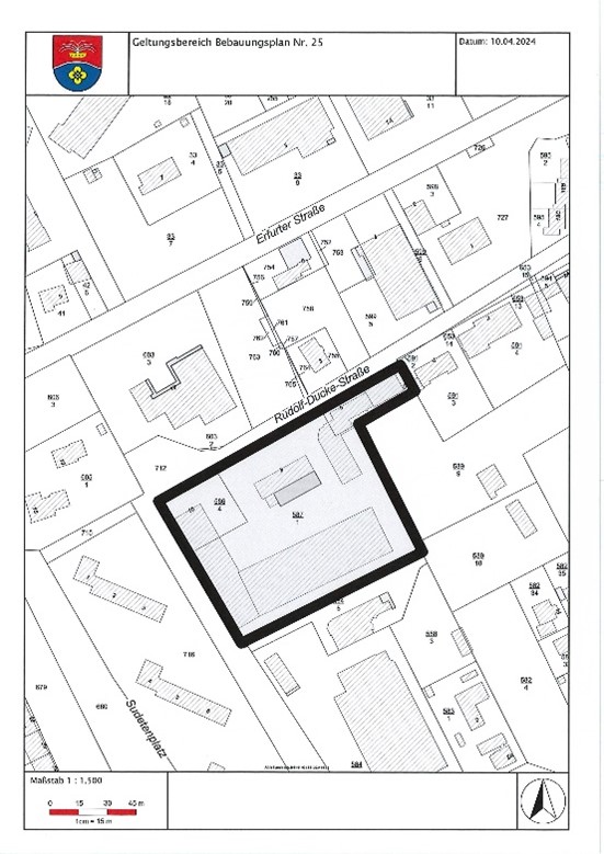
[Amtlicher Beitrag] Amtliche Bekanntmachung für die Gemeinde Trappenkamp: Bekanntmachung des Bebauungsplanes Nr. 25 für den Bereich des ehemaligen „Ducke-Geländes“, südlich der Rudolf-Ducke-Straße, Haus-Nr. 6, 8 und 10
Amtliche Bekanntmachung für die Gemeinde Trappenkamp
Bekanntmachung eines Aufstellungsbeschlusses und
der frühzeitigen Öffentlichkeitsbeteiligung
Die Gemeindevertretung der Gemeinde Trappenkamp hat in ihrer Sitzung am 25.04.2024 die Aufstellung des
| Bebauungsplanes Nr. 25 für den Bereich des ehemaligen „Ducke-Geländes“, südlich der Rudolf-Ducke-Straße, Haus-Nr. 6, 8 und 10 |
beschlossen.
Der Bebauungsplan wird als Bebauungsplan der Innenentwicklung im beschleunigten Verfahren nach § 13 a Baugesetzbuch (BauGB) ohne Durchführung einer Umweltprüfung aufgestellt.
Der Beschluss wird hiermit bekanntgemacht.
Mit dieser Planung werden die folgenden Ziele verfolgt:
- Städtebauliche Neuentwicklung des ehemaligen „Ducke-Geländes“
- Belebung der Fläche durch modernen und bezahlbaren Wohnraum
- Bereitstellung eines Standortes für einen Verwaltungsneubau
Die Öffentlichkeit soll am
11.12.2025 um 18:30 Uhr im Bürgerhaus, Am Markt 3, 24610 Trappenkamp
(vor der Sitzung der Gemeindevertretung)
über die Ziele und Zwecke der Planung und deren Auswirkungen informiert werden und Auskünfte dazu erhalten.
Lageplan mit Darstellung des Geltungsbereichs der Planung:

| Trappenkamp, den 24.11.2025
|
Für die Gemeinde Trappenkamp bekannt gemacht:
Amt Bornhöved Im Auftrage (Timm)
|
Bekanntgemacht über die Internetseite des Amtes Bornhöved am 27.11.2025



